半導体・製薬・研究設備・高圧ガス設備など
各種産業を、確かな配管技術で支えます。
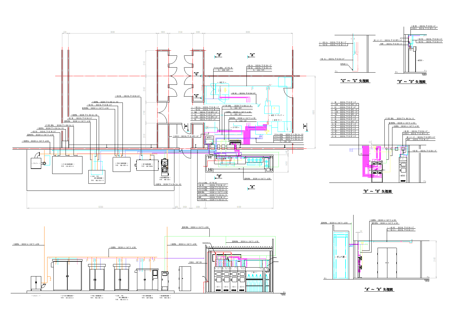
ユニオンは、設計・製作・施工・検査まで一貫し、配管を行います。
それらすべてをお客様のニーズに合わせ、安心の品質でご提供いたします。
配管設備工事
高圧・特殊ガス・薬液の配管など、配管設備はユニオンにお任せください。
配管設備工事の詳細へ
機器・装置製造
お客様のご要望・環境に合わせ、最良の機器・装置の製造をいたします。
機器・装置製造の詳細へ
設備メンテナンス
品質チェック、検査等設置後のアフターサービスもお任せください。
設備メンテナンスの詳細へ
部材・機器販売
ステンレス管やバルブ類など配管パーツも豊富に取り揃え販売しています。
部材・機器販売の詳細へ
